消防资源网,实时消防资讯·消防问答·精选优秀消防专题

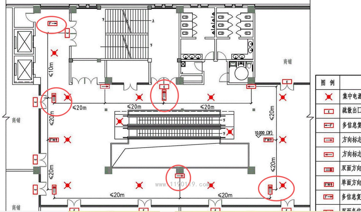
怎么理解方向标志灯的标志面与疏散方向垂直和平行?

怎么理解方向标志灯的标志面与疏散方向垂直和平行?

乌云 | 2025-09-27 11:03
请写下您的回答回答

回答 | 3

周家斌 2025-09-27 21:00 00 [回复]举报

EHS专家-DL 2025-09-29 11:25 00 [回复]举报

我的理解就是 看 标志面与人员前进方向成90°夹角或者近0°夹角这样。

李勤 2025-09-29 14:40 00 [回复]举报

人向上边看到的疏散牌便于观察、清楚。向下看这个疏散牌和他平行,如果走道窄一点,距离远了,就不便于观察了

关闭

关闭

手机APP下载