全部分类
- 消防专题
-
- 规范标准应用
- 消防产品监管原则
- 新规解读
- 规范·专题·文件汇总
- 防火单元·底层逻辑
- 安全疏散·底层逻辑
- 防火间距·底层逻辑
- 基础专题
- 建筑高度和层数
- 防火间距
- 灭火救援
- 安全疏散
- 安全疏散距离
- 安全疏散人数·净宽度
- 疏散门·疏散走道·安全出口·疏散楼梯
- 消防电梯
- 防火分隔
- 防火涂料
- 工业建筑
- 主要建筑功能的消防要求
- 主要建筑部位的消防要求
- 住宅建筑
- 商业服务网点
- 汽车库
- 电动汽车库
- 消防水源及给水设施
- 消防水泵&泵房
- 消火栓系统
- 自动喷水灭火系统
- 细水雾灭火系统
- 消防炮(自动跟踪定位射流灭火系统)
- 气体灭火系统
- 灭火器
- 防烟排烟系统
- 消防控制室
- 消防设施-供配电
- 火灾自动报警系统(火灾报警)
- 应急照明疏散指示
- 报警联动-设计验收
- 给排水消防问题集锦
- 消防问答
- 解读及应用-释疑
- 磐龙讲堂:特殊消防设计、性能化设计
- 磐龙讲堂:消防气瓶-定期检验
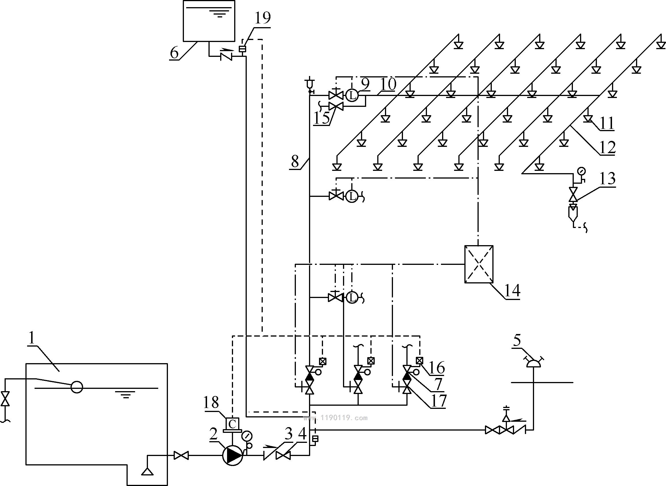
自喷系统水平敷设坡度
您好,请教一个问题,自动喷水灭火系统设计规范当中8.0.13水平设置的管消宜有坡度,并应坡向泄水阀。此泄水阀指的是楼层试水装置还是报警阀组上的泄水装置[抱拳][抱拳][抱拳]



