消防资源网,实时消防资讯·消防问答·精选优秀消防专题

耐火外窗是否可以用推拉窗或者是出阳台的推拉门?

老师,您好!请问一下火规5.5.30 中要求建筑外窗的耐火完整性不宜低于1.0h,这个耐火外窗是否可以用推拉窗或者是出阳台的推拉门?如果可以,此类窗是否可以满足外窗的耐火完整性?

晨晨123 | 2023-03-08 10:08
请写下您的回答回答

回答 | 1

周家斌 2023-03-10 10:43 00 [回复]举报

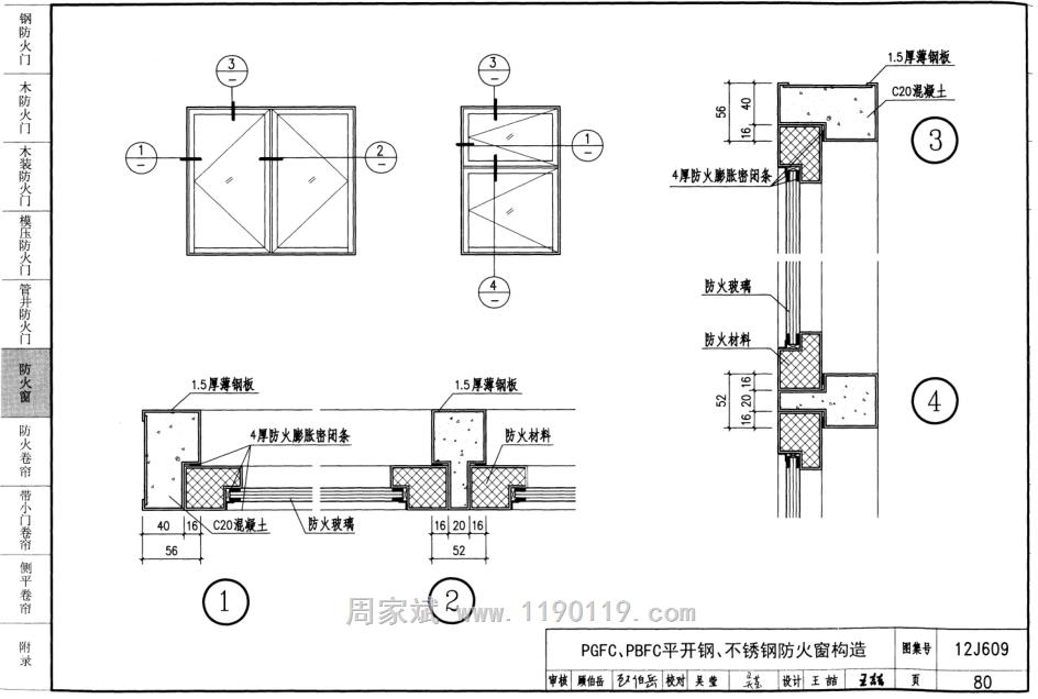
防火窗以平开窗为主,也有悬窗,并能在火灾时自动关闭功能。推拉式很难达到防火密闭性能,最终以型式检验报告为依据。

关闭

关闭

手机APP下载