消防水泵电机安装螺栓螺距的要求
消防水泵电机安装螺栓螺距的要求
首先说结论: 螺栓与螺母拧紧后,螺栓应露出螺母 2~3个螺距,其支承面应与被紧固零件贴合; 但是看下文 ....↓
一、消防规范依据
( 1 ) 根据:《 自动喷水灭火系统施工及验收规范 GB50261-2017 》
4.2.2 消防水泵的安装 ,应符合现行国家标准《机械设备安装工程施工及验收通用规范》 GB 50231、《压缩机、风机、泵安装工程施工及验收规范》GB 50275的有关规定。
★结论 :执行 《机械设备安装工程施工及验收通用规范》 GB 50231
( 2 ) 根据:《 消防给水及消火栓系统技术规范 GB50974-2014 》
12.3.2 消防水泵的安装 应符合下列要求 : 3 、 消防水泵的安装应符合现行国家标准《机械设备安装工程施工及验收通用规范》 GB 50231和《风机、压缩机、泵安装工程施工及验收规范》GB 50275的有关规定;
★结论: 执行 《机械设备安装工程施工及验收通用规范》 GB 50231
二、通用规范依据
( 1 ) 根据:《 机械设备安装工程施工及验收通用规范 GB50231-2009 》
5.2.1 螺栓或螺钉联接紧固时,应符合下列要求:
4 、 螺栓与螺母拧紧后,螺栓应露出螺母 2~3个螺距,其支承面应与被紧固零件贴合;
★总结: 虽然最终找到了依据,但是该条文( 5.2.1 )非强制性条文, ( 第 1.0.5 、 1.0.6 、 2.0.4(3) 、 6.2.4(6 )条(款)为强制性条文 )
★ 建议:现场检查中可以把该项问题,作为建议整改项 ,以 提高水泵安全运行稳定性 ,作为切入点提出。
三、其他参考
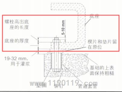
结合某品牌水泵安装说明书,没有标注该处螺栓应露出多少(电动机与叶轮壳体),只有底座螺栓作了要求(螺栓高出底座 5-10mm)。
|
底座螺栓安装要求 |
电动机与叶轮壳体安装 |
|
|
|
|
螺栓高出底座 5-10mm |
没有标注参数 |


