2025《江西省消防技术标准疑难问题解答》
江西省消防技术标准疑难问题解答
前 言
本疑难问题解答由江西省住房和城乡建设厅、江西省消防救援局组织有关单位和行业专家进行编制,并向社会公开征集疑难问题,经反复修改论证形成。
本疑难问题解答由江西省住房和城乡建设厅、江西省消防救援局负责管理,由《江西省消防技术标准疑难问题解答》编制组负责具体技术内容的解释,可供从事建设工程消防设计、审查、验收及管理的相关单位和人员参考使用,在执行过程中如有意见和建议,请寄送江西省住房和城乡建设厅建设工程消防监管处(地址:江西省南昌市东湖区北京西路69号,邮编:330046)或江西省消防救援局法制与社会消防工作处(地址:江西省南昌市西湖区洪城路966号,邮政编码:330009),以供今后修订时参考。
主要起草人:
建筑专业:刘小庆 、许强、胡伟民、赖安华、卢曦东、徐娟、符迁、林颖、龙羿、付波、付孟知、郑有明、黄晟
给排水专业:杨敦、黄堃、汤晖、陶美君、樊琦
电气专业:魏方兴、黄为民、梁军、戈旺
暖通专业:李政煌、范军辉、罗颖、钟朝正
消防专业:范平、张然、黄振宇、毛榕英、程樱、丁曦、江平华
主要审查人:倪照鹏、刘文利、黄晓家
第一章 建筑分类与定性
问题1:在住宅首层或一、二层设置的物业办公用房、社区活动等用房是否可以按《建筑防火通用规范》中住宅与商业设施合建的建筑按照住宅建筑的防火要求建造时的商业设施进行消防设计?
回复:在住宅首层或一、二层设置的物业办公用房、社区活动等住宅区的配套服务用房和设置在一层的社区养老配套用房(不含老年人照料设施),当建筑面积不超过300平方米时,可以根据《建筑防火通用规范》GB55037中住宅与商业设施合建的建筑按照住宅建筑的防火要求,参照其中的商业设施要求进行消防设计。
问题2:独立建造且由若干分隔单元组合的小型商业建筑消防设计如何定性?
回复:独立建造且由若干分隔单元组合的小型商业建筑,层数不超过二层,总建筑面积不超过3000㎡,每个分隔单元建筑面积不大于300㎡,当分隔单元任一层建筑面积不大于200㎡时可设置一个安全出口,且安全出口在首层应直接对外,并符合以下技术要求:
1.分隔单元的疏散楼梯应采用封闭楼梯间设计,梯段净宽不应小于1.1m,楼梯间疏散门的净宽不应小于0.9m,首层疏散外门不应小于1.1m;(当室内任一点至首层直通室外的出口处的直线距离不大于《建筑设计防火规范》GB50016第5.5.17条表5.5.17对相应耐火等级建筑袋形走道两侧或尽端的疏散门至最近安全出口的直线距离时,允许采用敞开楼梯间,楼梯部分的距离按其水平投影长度的1.5倍计算)
2.单元之间的隔墙为耐火极限不低于2.00h无开口的防火隔墙,相邻单元之间外墙应设置宽度不小于1.0m、耐火极限不低于2.00h的实体墙;开口之间宽度小于1.0m时,应在开口之间设置突出外墙不小于0.6m的实体墙垛;
3.不具备上述条件时,应符合《建筑防火通用规范》GB55037、《建筑设计防火规范》GB50016等有关商店建筑的要求。
问题3:宿舍、公寓等建筑消防设计如何定性?
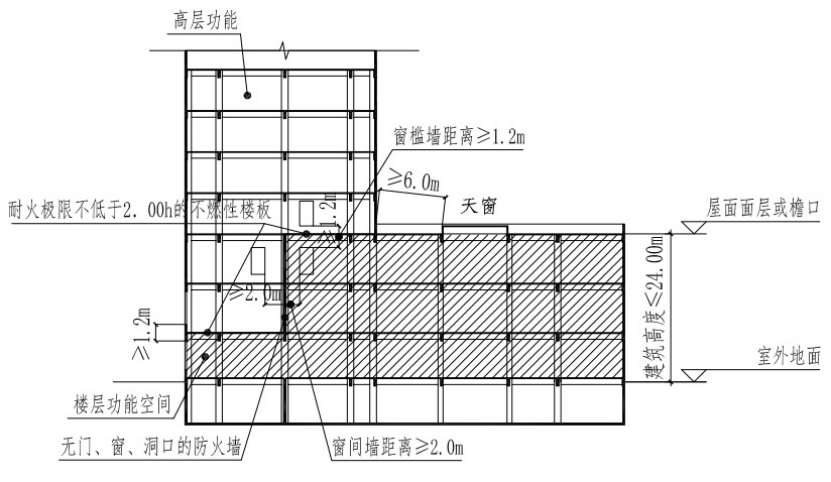
回复:宿舍、公寓等非住宅类居住建筑应按《建筑设计防火规范》中有关公共建筑的要求进行消防设计。公寓式办公楼应按办公楼和旅馆建筑的要求进行消防设计。公寓式酒店、酒店式公寓应按旅馆的要求进行消防设计。上述用房与其他对外营业的餐饮、商店等商业设施应采用耐火极限不低于2.00h的隔墙和耐火极限不低于1.50h的不燃烧体楼板进行分隔,且安全出口和疏散楼梯应分别独立设置。
问题4:高职院校实训用房消防设计如何定性?
回复:高等院校、职业技术学校、技工学校中仅用于教学为目的,不对外营业的综合性实训教学建筑,包括卫生职业技术学院(校)中的模拟老年人护理病房、医学院(校)中的模拟病房、商贸职业技术学院(校)中的模拟酒店客房等类似用房,可按照普通教学建筑的要求进行消防设计。
高等院校中设置的汽车检修维修、氧气焊接、木工、机修机加工、电子装配、服装加工等类似厂房车间的教学用房建筑,在满足普通教学建筑的相关消防设计要求同时,还应满足相应工业厂房有关工艺防火的要求。
问题5:棋牌室、室内攀岩、健身房、保龄球、台球、棒球、蹦床、飞镖、射击、真人CS、室内电动卡丁车场等场所消防设计如何定性?
回复:按公共娱乐场所要求进行消防设计。
第二章 消防车道
问题6:尽头式消防车道的距离是从消防车道边起算还是从消防车道中线起算?在消防车道尽端设置消防回车场地不便时,可如何设置?
回复:尽头式消防车道与环形消防车道距离大于40m时,应设置消防回车场地。尽头式消防车道的距离是从环形消防车道近端路缘延长线与尽端式道路中心线的交点起算(详见附图6.1)。当难以设置满足要求的尽头式消防回车场地时,可采用附图6.2所示方式设置消防回车场地。
附图 6.1
附图 6.2
第三章 防火分区和平面布置
问题7:高层公共建筑的主体投影范围内、仅供建筑高度不大于24m的楼层使用的独立疏散楼梯间,是否可以设置封闭楼梯间?
回复:高层公共建筑的主体投影范围内、建筑高度不大于24m的楼层中仅供这些楼层使用的独立疏散楼梯,允许采用封闭楼梯间。
附图7(附图仅示意封闭楼梯间所在区域)
问题8:中小学教室、幼儿园开敞式外廊的隔墙上的窗户是否要做乙级防火窗?
回复:学校教室、幼儿园等开敞式外廊上设置的窗户可视为建筑外墙上的开窗,除规范另有规定外,可设置无耐火极限要求的普通窗。
问题9:燃油或燃气锅炉房、柴油发电机房等房间是否可以通过采用双层楼板的形式布置在人员密集的场所下方?
回复:燃油或燃气锅炉房、柴油发电机房等房间不应布置在人员密集场所上下层或贴邻;确有困难时,可设置隔腔与人员密集的场所进行分隔,隔腔上、下楼板的耐火极限分别不应低于1.50h,隔腔的净空高度不应小于1.50m。
第四章 安全疏散和避难
问题10:地下车库防火单元作为疏散用的连通门设置要求?
回复:地下车库内的防火单元疏散门,当需通向相邻防火单元时,应符合下列要求:
1.疏散门的开启不应被停车位阻挡;
2.疏散路线上不应布置停车位;
3.疏散门的数量不应少于2个,并应位于不同方位;
4.防火分区内任一点至最近安全出口的直线距离应符合现行国家标准《汽车库、修车库和停车场设计防火规范》GB50067的规定。
问题11:对于住宅二层以上设置了两个疏散楼梯,在住宅首层门厅是否可以合并一个安全出入口?
回复:住宅建筑的两部疏散楼梯或一组剪刀楼梯间(含楼梯投影范围内,地下室到首层的楼梯),在首层可以采用同一个扩大的封闭楼梯间或扩大的前室,首层直接对外的出口门的净宽不应小于1.4m(详见附图11)。
附图 11
问题12:非住宅类建筑在首层扩大的封闭楼梯间应满足什么要求?普通电梯的门、管道井门是否允许开向上述区域?
回复:建筑在首层扩大的封闭楼梯间,应满足以下要求:
1.自楼梯间在首层的踏步处至直通室外的门口的直线距离不应大于30m,且当建筑设置自动喷水灭火系统时,该疏散距离仍不允许增加;
2.应采用耐火极限不低于2.00h的防火隔墙和乙级防火门、窗与相连通的走道和房间分隔;
3.除住宅建筑外,在扩大的封闭楼梯间内不应设置各类设备竖井的检修门;
4.当在扩大的封闭楼梯间内设置非消防电梯时,其防火性能应符合现行国家标准《建筑防火通用规范》GB 55037-2022有关消防电梯的规定;非消防电梯确需在地下室停靠时,应在地下停靠层设置防火隔间。该防火隔间应采用耐火极限不低于2.00h的防火隔墙和甲级防火门与相邻部位分隔。
问题13:地下疏散楼梯设置形式与建筑埋深相关。当地下室埋深部分超10m,部分不足10m时,该埋深是否可按各自防火分区的不利点到室外出口地面的距离计算?
回复:地下、半地下室疏散楼梯间的设置要求,应符合现行国家标准《建筑防火通用规范》GB 55037-2022第7.1.10条的规定。当地下室、半地下室部分区域的层数不大于2层,部分区域的埋深大于10m或层数不小于3层时,其疏散楼梯可以分别按照不同部位的实际服务埋深户层数确定楼梯间的形式。其中,埋深大于10m或层数不小于3层的疏散楼梯应为防烟楼梯间(详见附图13)。
附图13
问题14:门卫直通室外的门是否执行《防火通规》7.1.4.3条首层疏散外门的净宽度不小于1.10m?
回复:门卫等建筑安全出口即房间疏散门的建筑单体,或与室内主体功能不连通的单个辅助房间(例如设备间、垃圾间、储藏间),其首层直通室外的疏散门净宽度不应小于0.80m。
问题15:疏散楼梯的梯段净宽度如何计算?
回复:疏散楼梯的净宽度应计算按楼梯栏杆或扶手内侧之间的水平距离计算(详见附图15)。
附图15
第五章 建筑构件及构造
问题16:楼梯间层间梯柱的耐火极限怎么取?
回复:楼梯间层间梯柱的耐火极限不应低于所在楼梯间防火隔墙的耐火极限;当楼梯参与结构整体计算(整体受力)时,梯柱的耐火极限不应低于该建筑结构承重柱的耐火极限要求。
问题17:钢结构柱间支撑及楼(屋)盖支撑耐火极限怎么取?
回复:钢结构柱间支撑、转换梁、转换桁架、落地拱形结构的耐火极限应与结构承重柱相同;楼盖支撑的耐火极限应与梁相同;屋盖支撑、系杆、屋面采光顶结构耐火极限应与屋顶承重构件相同;钢结构节点的耐火极限不应低于与其相连的构件中耐火极限要求最高者的耐火极限;当屋面檩条同时作为屋盖结构系统支撑构件时,檩条的耐火极限不应低于屋顶承重构件的耐火极限。
第六章 消防给水和灭火设施
问题18:多种功能组合的民用建筑,火灾延续时间应如何取值?
回复:1.住宅建筑与其他使用功能的建筑合建时,住宅部分的火灾延续时间不应小于2.0h,非住宅部分的火灾延续时间按其功能和建筑高度根据规范取值;
2.建筑由主体功能及其配套服务功能组成时,按主体功能和建筑总高度确定火灾延续时间;
3.医院的门急诊楼、医技楼、住院楼等与医疗相关功能合建组成的高层建筑,火灾延续时间不应小于2.0h。
问题19:《消防给水及消火栓系统技术规范》GB50974-2014表3.5.2中未列入的建筑,其室内消火栓设计流量应如何取值?
回复:独立建造的下列建筑,室内消火栓设计流量取值方法为:老年人照料设施、托儿所、幼儿园、卫生服务站参照病房楼取值;餐厅、食堂等餐饮建筑以及售楼部参照商店取值;汽车4S店的展示销售区参照商店取值,维修保养区按修车库取值;其它未提及的建筑应按其用途功能、体积、高度、耐火等级、火灾危险性等因素综合确定,参照《消防给水及消火栓系统技术规范》GB50974-2014表3.5.2建筑物室内消火栓设计流量的类似建筑取值。
问题20:局部设置具有送回风管(道)的集中空气调节系统的多层公共建筑,不设自动喷水灭火系统应满足什么要求?
回复:局部设置具有送回风管(道)的集中空气调节系统的多层公共建筑,当不设置自动喷水灭火系统时,应符合下列要求:
1.设置空调系统的部分建筑面积之和不超过3000㎡;
2.安全出口、疏散楼梯独立设置;
3.空调风管不穿越防火分区。
问题21:四周敞开且仅设有顶棚的单层菜市场,在什么情况下应设置自动喷水灭火系统?
回复:四周敞开,未设置干货、杂货等商铺的单层菜市场,顶棚及结构柱耐火极限符合建筑耐火等级一、二级要求,且总面积不超过2500m2时,可不设置自动喷水灭火系统。其他情形均应设置动喷水灭火系统。
问题22:机械式立体车库的自动喷水灭火系统设计流量应如何取值,喷头应如何选型?
回复:机械式汽车库的自动喷水灭火系统设计流量及喷头选择应满足以下要求:
1.机械式汽车库自动喷水灭火系统的设计流量,应附加停车的载车板内开启喷头的流量,当仅设置一层载车板时,载车板内开启喷头的数量按8只计,当设置2层及以上载车板时,载车板内开启喷头的数量按14只计;
2.载车板内的喷头,当采用K=80水平边墙型喷头时,喷头最小工作压力不应小于0.20MPa;当采用K=115水平边墙型喷头时,喷头最小工作压力不应小于0.10MPa。
问题23:《自动喷水灭火系统设计规范》GB50084-2017表5.0.2中未列入的高大空间场所,自动喷水灭火系统设计参数应如何取值?
回复:高大空间场所的自动喷水灭火系统设计参数可按以下原则选取:
1.游客接待中心大厅、缆车中转大厅等,按照《自动喷水灭火系统设计规范》GB50084-2017表5.0.2有关“中庭、体育馆、航站楼”的规定取值;
2.新闻发布大厅、媒体中心、指挥大厅、展厅、歌舞厅、高档餐厅局部上空、高校食堂、汽车4S店的展示销售区等,按照《自动喷水灭火系统设计规范》GB50084-2017表5.0.2有关“影剧院、音乐厅、会展中心”的规定取值。
3.室内净空高度大于18m的场所,应选用其他适用的自动灭火系统。
第七章 消防电气和火灾自动报警系统
问题24:民用建筑中的柴油发电机房是否需要按爆炸危险环境设计?
回复:民用建筑中的柴油发电机房不需要按照爆炸危险环境进行电气设计,此类柴油发电机房的储油间可不设可燃气体探测装置。
问题25:《火灾自动报警系统设计规范》GB50116-2013中4.7.2“轿厢内应设置能直接与消防控制室通话的专用电话”,普通电梯轿厢内是否需设置消防专用电话置?
回复:普通电梯轿厢内应设置直接与消防控制室通话的专用电话置。当电梯具备的五方通话系统主机设置在消防控制室,应急时的电源由消防电源保证,且相关通信线路满足国家标准《消防设施通用规范》GB 55036-2022第12.0.16条、《火灾自动报警系统设计规范》GB 50116-2013第11.2.2条要求时,可用电梯五方对讲的轿厢分机替代轿厢内的消防专用电话。
问题26:《民用建筑电气设计标准》GB 51348-2019中13.7.5,“应由变电所或总配电室放射式供电”在实际设计中,应如何区分?
回复:共用地下室的多栋建筑,可按每栋楼设置楼栋总配电室。楼栋内除消防控制室、消防水泵、消防电梯(公共建筑)、超高层避难场所外的消防用电可由本楼栋总配电室供电。设于楼栋总配电室的消防总配电箱的电源应由变电所供电。
问题27:关于消防用电应采用专用供电,部分消防设备机房内、为消防机房(设备)服务的零星用电设备,在设计中如何考虑?
回复:消防控制室、消防电梯机房、消防水泵房、消防风机房等设备机房内的照明属备用照明,应由消防配电箱供电;消防控制室、消防电梯机房、消防水泵房、消防风机房等设备机房内插座、空调,消防电梯井道照明及插座等非消防负荷,其供电电源回路不应接入消防配电箱。地库排污泵应根据水专业提资确定该排污泵是否属于消防设备,如为消防设备,应按照消防设备要求配电。
问题28:消防设计中,“净高超过O.8m的具有可燃物的闷顶”内的火灾报警探测器应如何考虑设置?
回复:净高大于2.6m且可燃物较多的技术夹层,净高大于0.8m且有可燃物的闷顶或吊顶内,应设置火灾探测器,一般选用点型感烟火灾探测器。电气线路穿金属管或金属槽盒保护时,不视为吊顶内的可燃物。
第八章 防烟与排烟
问题29:建筑高度大于50m的公共建筑、工业建筑和建筑高度大于100m的住宅建筑中仅为50m以下部位服务的楼梯间及前室(含独立前室、消防电梯前室、共用前室、合用前室)能否采用自然通风方式?
回复:对于建筑高度大于50m的公共建筑、工业建筑和建筑高度大于100m的住宅建筑,当部分防烟楼梯间及其前室(或合用前室)仅服务于建筑高度不大于50m的楼层时,其防烟方式及系统设置可按照实际服务的建筑高度确定。
问题30:首层扩大前室(或扩大合用前室)采用自然通风防烟方式时是否受建筑高度限制?其自然通风防烟设施如何设置?
回复:当首层扩大前室(或扩大合用前室)具有不同朝向的可开启外窗,可开启面积大于或等于扩大前室(或扩大合用前室)地面面积的2%,且每个朝向的面积均应大于或等于2.0㎡,可采用自然通风防烟方式,不受建筑高度限制。
问题31:楼梯间及前室(或合用前室)的自然通风防烟系统计算可开启外窗面积时,是否需扣除窗框,仅算玻璃的净面积?
回复:采用自然通风防烟方式的可开启外窗面积是指可开启外窗的窗扇面积,而非可开启外窗的有效面积,可开启外窗面积可按建筑专业门窗详图中可开启窗扇的标注尺寸进行计算。(推拉窗的活动窗扇可全部计入自然通风面积)
问题32:老年人照料设施和高层病房楼的避难间加压送风系统计算风量如何计算确定?
回复:老年人照料设施和高层病房楼的避难间,当采用机械加压送风方式防烟时,其加压送风量应按避难间的余压值(在门关闭状态下)不小于25Pa计算,且不应小于30 m3/(h﹒㎡)。加压送风系统的计算送风量应按该系统服务的所有避难间同时送风的风量计算。
问题33:常闭加压送风口执行机构的手动开启装置位于1.5m以下也便于操作,是否可以不再设置手动操作机构?
回复:当常闭加压送风口执行机构的手动开启装置设置在距楼地面1.5m以下时,可不另设就地手动操作机构,加压送风口执行机构处应有明显标识。
问题34:建筑中无人员经常停留的机电用房是否需设置排烟设施?
回复:建筑中水泵房、空调通风机房、变配电室、锅炉房、制冷机房及柴油发电机房等无人员经常停留的机电用房可不设置排烟设施,有人员值班的控制室属于经常有人停留的房间,需根据其建筑面积等因素确定是否需设置排烟设施。
问题35:宽度大于2.5m的走道,走道防烟分区长边长度如何确定?敞开式外廊是否需划分防烟分区?
回复:走道主体宽度不大于2.5m时,其防烟分区的长边长度不应大于60m;对于净高不大于6m的走道,当走道主体宽度大于2.5m且不大于4m时,其防烟分区的长边长度按走道防烟分区面积不大于150㎡确定,当走道主体宽度不大于4m,且走道防烟分区包括局部加宽的电梯厅、过厅等区域时,其防烟分区的长边长度按走道防烟分区面积不大于150㎡确定,且不应大于60m;敞开式外廊、单侧或双侧侧壁与室外直接相通的通道,可不划分防烟分区。
问题36:对于仅贯通两层的门厅,其排烟系统如何设计计算?建筑空间贯通三层及三层以上,且二层及二层以上与贯通空间分界处采用无门窗洞口的墙体等固定隔断进行分隔时,排烟量的计算是否可执行《建筑防烟排烟系统技术标准》第4.6.3条规定?
回复:当靠建筑外墙布置的门厅空间仅贯通两层,且贯通空间投影面积不大于200㎡时,可按以下要求进行排烟系统设计计算:
1.当采用机械排烟系统时,其计算排烟量可按空间体积换气次数不小于12次/h确定,且不应小于40000m3/h;
2.当采用自然排烟系统时,其储烟仓内自然排烟窗(口)开启的有效面积不应小于该门厅空间地面面积的5%。
除上述规定的情况外,仅贯通两层的建筑空间,排烟系统设计计算应执行《建筑防烟排烟系统技术标准》GB51251第4.6.3条规定。
贯通三层及三层以上,且二层及二层以上与贯通空间分界处采用无门窗洞口的墙体等固定隔断进行分隔时,排烟量的计算可执行《建筑防烟排烟系统技术标准》GB51251第4.6.3条规定。
问题37:室内空间净高不大于10.7m的工业建筑,其自然排烟口到对应防烟分区最不利点的距离是否应满足不大于室内空间净高2.8倍的要求?
回复:室内空间净高不大于10.7m的工业建筑,防烟分区内任一点与最近的自然排烟窗(口)之间的水平距离不应大于30m,室内空间净高大于10.7m的工业建筑,防烟分区内任一点与最近的自然排烟窗(口)之间的水平距离不应大于空间净高的2.8倍。
问题38:电影院观众厅排烟系统排烟量如何计算确定?
回复:电影院影厅的排烟量可按以下规定进行计算:
1.建筑面积不大于300㎡的影厅,其计算排烟量应按90 m3/(h·㎡)和换气次数13次/h分别计算,并取较大值,且不应小于18000 m3/h;
2.建筑面积大于300㎡的影厅,其计算排烟量应按《建筑防烟排烟系统技术标准》GB51251第4.6.3条的规定计算确定。
问题39:对于一些需设置补风设施的房间,能否采用间接补风?具体如何规定?
回复:补风系统的设置应符合《建筑防烟排烟系统技术标准》GB51251及下列规定:
1.对于地上房间,当房间建筑面积大于或等于500㎡,或房间建筑面积小于500㎡但大于300㎡且空间净高大于6m时,应设置直接补风设施;
2.设置机械排烟系统的地下或半地下建筑(室),当排烟房间建筑面积大于或等于200㎡时,应设置直接补风设施;当排烟房间建筑面积小于200㎡时,可通过房间门(非防火门)或防火风口从连通的走道或公共区域间接补风,但走道或公共区域应设置直接补风设施;
3.对于地下室贴邻室外下沉广场的房间,当采用自然排烟系统时,可按地上房间的要求设置补风设施;
4.疏散外门(含门斗内的普通门、不含感应门、旋转门)、手动或自动可开启外窗等可作为自然补风口,防火门、防火窗不可作为补风设施;
5.利用直通室外车道自然补风的地下机动车库、非机动车库,车道断面扣除储烟仓后的开口面积满足自然补风口风速不大于3m/s时,车道进风处可不设置挡烟垂壁。
问题40:《设施通规》第11.3.5条规定了排烟防火阀应具有联锁关闭相应排烟风机、补风机的功能,是否所有排烟防火阀均需联锁关闭相应排烟风机、补风机?
回复:《消防设施通用规范》GB 55036第11.3.5条仅规定了排烟防火阀应具有联锁关闭相应排烟风机、补风机的功能,未明确哪些排烟防火阀应联锁关闭相应排烟风机、补风机,具体联锁要求应符合现行国家标准《建筑防烟排烟系统技术标准》GB 51251、《火灾自动报警系统设计规范》GB 50116-2013等标准的规定。
问题41:设置在疏散通道、疏散走道、疏散出口的挡烟垂壁下沿距地面高度是否需满足不小于2.1m的要求?如需满足,对于装修改造项目,较多场景空间净高小于2.6m,当需划分防烟分区时,其排烟系统如何设计?
回复:设置在疏散通道、疏散走道、疏散出口的挡烟垂壁下沿距地面高度不应小于2.1m。对于装修改造项目,当设计储烟仓高度采用《建筑防烟排烟系统技术标准》所允许的最小储烟仓高度,空间净高仍无法满足挡烟垂壁的上述安装要求时,该空间防烟分区划分及排烟设施可按以下要求进行设计:
1.防烟分区的长边长度按防烟分区面积不大于 250m2确定;
2.该防烟分区应设置机械排烟设施,且排烟量应按60m3/(h·m2)计算且不小于15000m3/h。
问题42:燃气锅炉房、燃气型直燃式溴化锂冷(热)水机组机房等燃气使用场所设置在地下室时,其事故排风系统风机能否设置在地下室?
回复:地下、半地下场所的自然通风条件较差,主要依靠机械通风换气方式使场所内的空气符合安全和正常使用要求。为防止可燃气体、蒸气在这些场所积聚不散,要防止排除含爆炸危险性气体或蒸气的排放系统将这些危险性物质引入地下或半地下。因此,不允许将此类排风设备设置在地下和半地下。对于某些正常运行时火灾危险性较低,又必须设置在地下或半地下的设备用房(如燃气、燃油锅炉房),事故通风系统必须设置在地下时,应采取相应的安全措施。例如,将排风机设置在专用机房内,并采用耐火极限不低于3.00h的防火隔墙与相邻区域分隔,机房本身应设置机械通风系统或具有良好的自然通风条件;也可设置在自然通风良好的竖井内等。
问题43:机械加压送风系统竖向服务高度如何确定?机械排烟系统竖向服务高度如何确定?
回复:国家标准《建筑防烟排烟系统技术标准》GB 51251第3.3.1条中“每段高度”指加压送风系统服务区段的高度,不包括系统服务楼层以外空间的风管高度;第4.4.2条中“每段高度”指排烟系统服务楼层的最下面一层地面到最上一层顶板的高度,不包括系统服务楼层以外空间的风管高度。
问题44:加压送风机和排烟风机的公称风量,机械加压送风系统和机械排烟系统风管及风口尺寸如何确定?
回复:加压送风机和排烟风机的公称风量不应小于设计风量,机械加压送风系统和机械排烟系统风管及风口尺寸应根据设计计算风量和风速要求经计算确定。
- 上一节:关于印发《江西省消防技术标准疑难问题解答》的通知
- 下一节:没有了







