专题
答疑
问答
资讯
专栏
规范
讲堂
登录
消防问答
>
建筑防火
提问
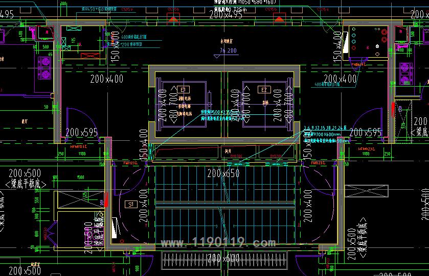
关于U型三合一前室短边计算的问题
如图所示的三合一前室的短边应该如何计算
举报
请写下您的回答
回答
提 交
共 0 回答
海报分享
最新问题
关于单体建筑的确认方式
关于U型三合一前室短边计算的问题
应急照明进线问题,请教!
0度及以下冷库的消火栓设置
灭火器现在还需要年检(每年一次)吗
关闭
关闭
正在生成海报, 请稍候
↑保存图片分享