消防问答 > 安全疏散 提问

如何正确理解 疏散门宽度要求?


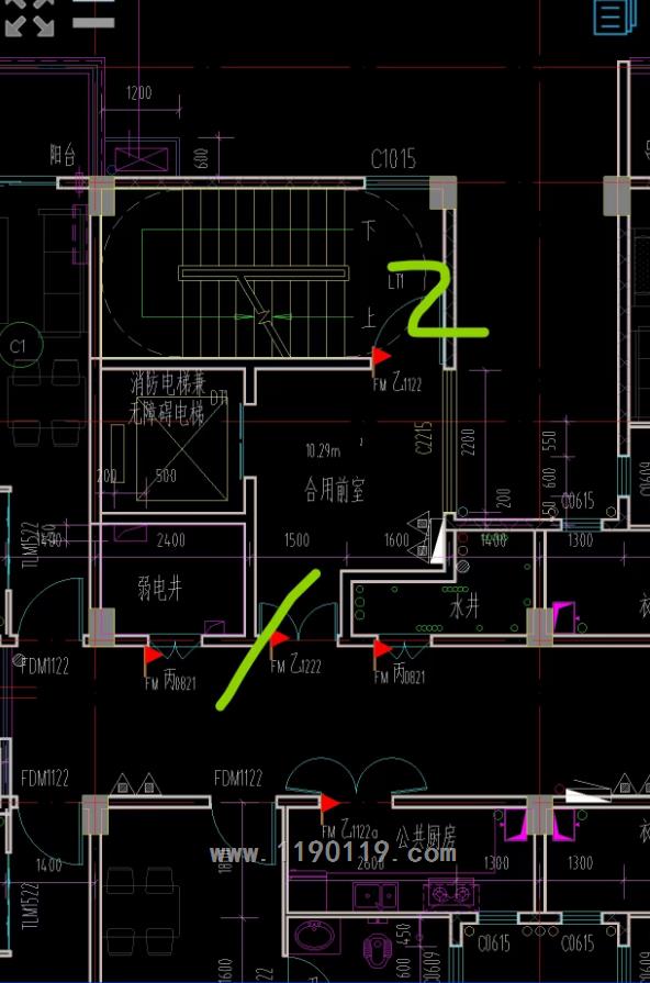
疏散门广义上 包含房间到走道这个门,  前室也叫疏散门,楼梯间门也叫疏散门,那么问题来了:高层公共(宿舍楼),规范说楼梯间梯段1.2米,室外门1.2米,疏散门0.8米, 那么图中这处标1号(合前室门),2号(楼梯门)是要符合0.8米宽就行(按疏散门0.8米理解),还是得按1.2米宽(按楼梯间也是1.2米宽理解) , 还是说1号门必须按1.2米,楼梯门可0.8米?   如何正常理解疏散1号,2号门的必须最低宽度?












请写下您的回答回答

共 3 回答

消防网友68723 25-11-29

房间门考虑的是本房间的疏散,梯段考虑本楼层或防火分区的。均与疏散人数有关。


0 0 [回复]举报

yujun500 25-12-01

疏散楼梯最小宽度和普通疏散门是没有直接关系的,和梯段宽有关的门只有底层对外的楼梯门,此门要求和最小梯段一样要求1.2米,其他楼层的楼梯门和梯段宽无关,只和本层疏散宽度有关。疏散路径一般是房间内到房间门,房间门通过疏散走道到楼梯门,这里房间门和楼梯间门是标准的疏散门,同时如果疏散通道上设置门也属于疏散门,这里都要满足最小0.8的要求。按你图中示意,门1可以1.2米,门2 0.8米,但是本层的最大疏散宽度就只有0.8米。另外,图中门2功能上只考虑疏散,门1可能考虑家具搬运,消防电梯救援的宽度等,所以一般门1会考虑比较宽

0 0 [回复]举报

哈哈大王 26-02-09

看你的图应该是高层公共建筑,按照规范要求疏散出口是0.8,首层疏散外门是1.2,但是高层公共建筑还应该结合百人疏散指标来确定。文字描述已经很清楚了,按照规范来就行。

0 0 [回复]举报

最新问题

关闭

关闭