专题
答疑
问答
资讯
专栏
规范
讲堂
登录
消防问答
>
建筑防火
提问
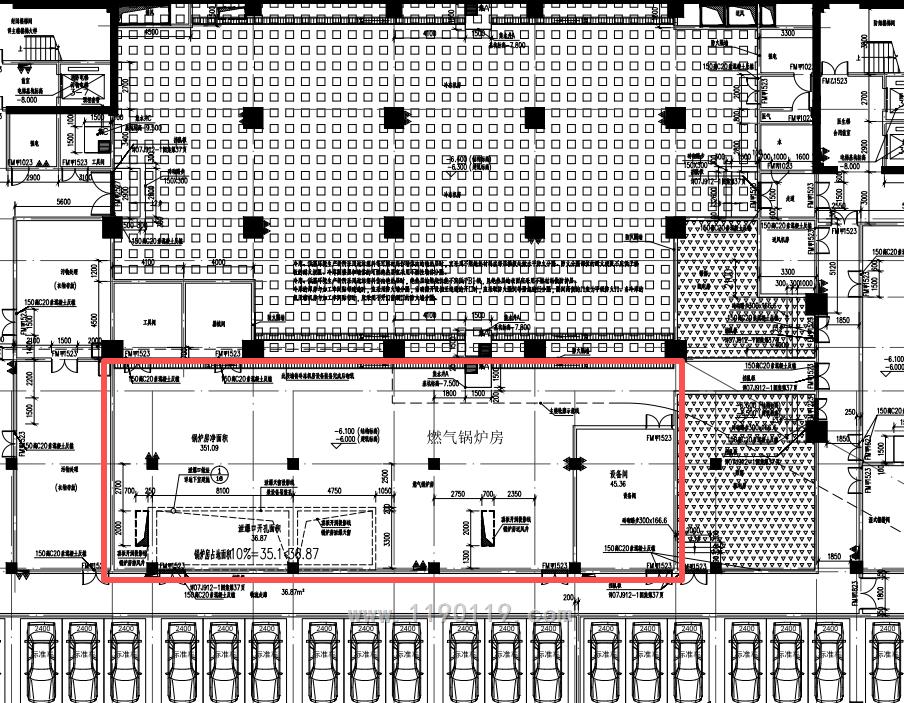
锅炉房设置在地下室一层,但锅炉房空间设置在主楼下面外墙部位,是否可行?
举报
请写下您的回答
回答
提 交
共 0 回答
海报分享
最新问题
锅炉房设置在地下室一层,但锅炉房空间设置在主楼下面外墙部位,是否可行?
商场内的KTV可以和商业共用安全出口吗?
商场疏散通道宽度要求
单独的一幢单层变配电房,配电房和变压器房之间的门和向外疏散的门设置要求,是否都需要防火门,几级防火门?
厂房层高要多少有规范吗
关闭
关闭
正在生成海报, 请稍候
↑保存图片分享