消防问答 > 防烟排烟 提问

同一防烟分区存在不同净高空间

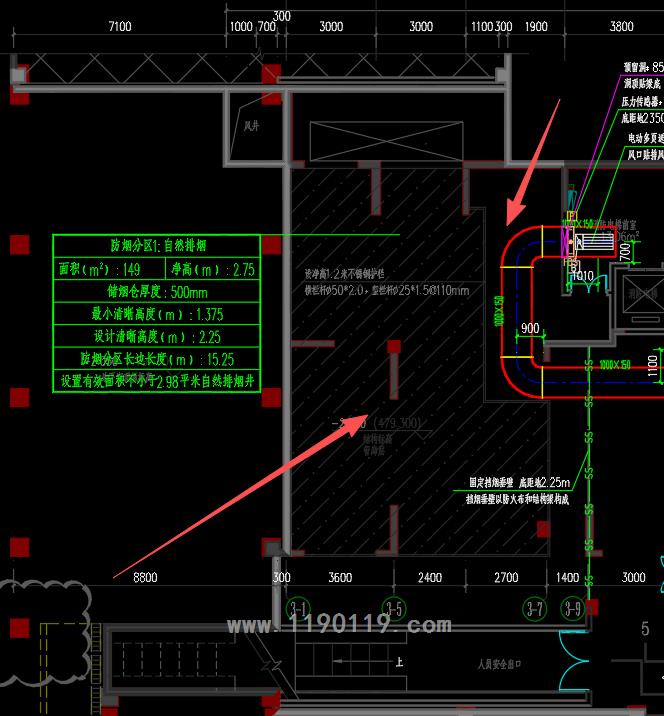
审图单位提出一个防烟分区内的不同高度区域最小清晰高度和设计清晰高度应按最小净高来计算请教各位老师们,这个是有条文规定吗?如下图所示,此区域是地下一层非机动车库,阴影部分的净高2.3米(由于负二层做了抬高),其余部分2.7米,该防烟分区的最小清晰高度是按2.75米来计算的,挡烟垂壁也是设置在高度位置处,这样设计是否违反规范要求?

请写下您的回答回答

共 0 回答

最新问题

关闭

关闭