专题
答疑
问答
资讯
专栏
规范
讲堂
登录
消防问答
>
安全疏散
提问
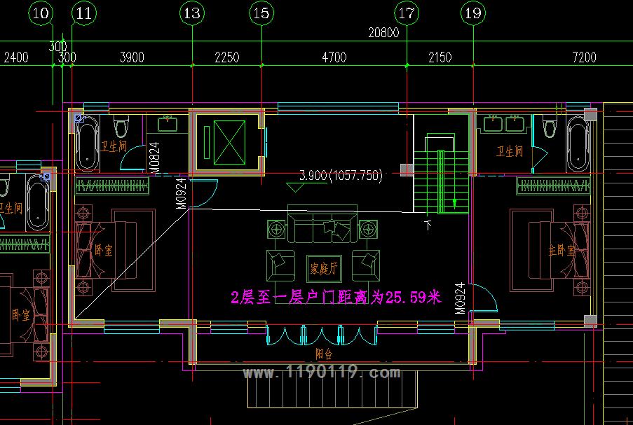
合院内疏散怎么办
合院内,地下一层,地上二层,为一个防火分区,设开敞楼梯间,二层及地下室内最远点至首层户门的距离大于22米,住宅内疏散怎么解决?住宅内可设喷淋吗?
举报
请写下您的回答
回答
提 交
共 0 回答
海报分享
最新问题
住宅入户门是否也需要净高2.1m?
厂房疏散宽度计算
四合院的正房和东西厢房的间距,墙面没有正对,只是角对角。
推拉门可做消防排烟使用吗
消防水泵房的疏散照明设计
关闭
关闭
正在生成海报, 请稍候
↑保存图片分享